YYMPC船用组装式空调装置
客户为中心、奋斗者为本
YYMPC船用组装式空调装置
此页面链接已复制
产品介绍
舰船用组装式空调装置是船舶空调系统的核心设备,能用来对空气进行温、湿度调节及新风补充,给人们提供舒适的工作和生活环境,广泛用于各种类型客船、货船、舰艇及海上石油平台。装置出厂前已通过压力试验、真空试验及运转试验,船厂安装时,仅需接通电源及连接必要的有关管路即可进行调试,投入运行。
产品特性:
●设计新颖、集中控制与管理,操作方便。
●宽电压运行,允许电压在一定范围内波动,并具有电源监视功能。
●品质稳定,性能可靠。独特的防腐技术应用,能适应各类海洋腐蚀环境,并能在振动,颠簸、摇摆等不规则状态下正常运行。
●空气处理端组合功能强大,可根据客户要求提供混合、过滤、冷却、加热、加湿、降湿、消音、送风、均流等功能,适用性强。
●设有特别设计的检视门,容易开启检修维护,且不损及空调机组的坚固性。
●保护功能齐全。具有高压、低压、断水、防冻、安全阀、过载、逆相、缺相、相间平衡等安全保护功能。
●智能控制,操作简单,可实现自动化运行,并预留远程通信接口,实现远程操作与监控。
型号说明及定义:

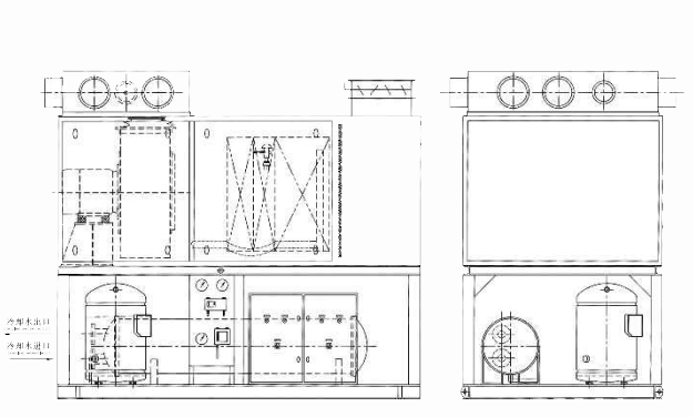
产品外形结构示意图:
